Casă individuală pe un singur nivel – 4 camere – Șura Mică

  • Casă individuală pe un singur nivel – 4 camere – Șura Mică
  • Casă individuală pe un singur nivel – 4 camere – Șura Mică
  • Casă individuală pe un singur nivel – 4 camere – Șura Mică
  • Casă individuală pe un singur nivel – 4 camere – Șura Mică
  • Casă individuală pe un singur nivel – 4 camere – Șura Mică
  • Casă individuală pe un singur nivel – 4 camere – Șura Mică
  • Pret vanzare 266,000 €

  • Camere 4

  • Structura Cărămidă

  • Suprafata utila 169

  • Suprafata terasa 28

  • Suprafta teren 593

  • Numar bai 3

  • Regim inaltime P

  • Bucatarii 1

  • An constructie 2026

  • Balcoane 1

  • Locuri de parcare 2

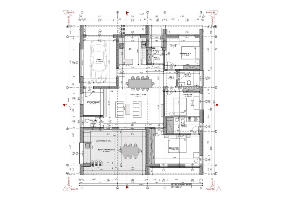
Descrierea proiectului

Descoperă o locuință modernă, construită la standarde înalte, unde calitatea premium a construcției și confortul se îmbină perfect cu liniștea unei zone aerisite.

🔹 169 mp utili | teren 593 mp

🔹 Living generos, 3 dormitoare, 3 băi, terasă acoperită

🔹 Garaj + curte privată cu 2 locuri de parcare

Beneficiezi de finisaje moderne și dotări de top: încălzire în pardoseală, centrală Bosch, tâmplărie Rehau, plus exterior complet amenajat (porți automate, videointerfon, pavaj, iluminat).

✔ Toate utilitățile + stradă privată

✔ Posibilitate predare la cheie sau pompă de căldură

Proiect dezvoltat de un constructor cu peste 25 de ani experiență și 300+ locuințe realizate.

Predare: decembrie 2026

Detalii: 0743030351 - Laura

Catalog Welhome

Catalogul cu case din Sibiu

*Peste 200 de case in portofoliu

Te-ar putea interesa si:

TOATE CASELE
Roxana Welhome

Roxana

Contacteaza un expert imobiliar pentru o consultatie

0752 088 381

Descarca GRATUIT brosura

Completeaza detaliile de contact pentru a descarca prezentarea